| 賃料 / 価格 | 19,990万円 |
|---|---|
| 建物名 / 物件名 | アバンエスパス烏丸御池 |
| 物件種別 | 販売物件 |
| 所在地 |
京都市中京区両替町通二条下る金吹町474
|
| 敷金・礼金 | |
| 管理費・共益費 | 管理費: 32,150円 修繕積立金: 23,250円 駐車場: 21,000円 〜 23,000円(空無/要確認) |
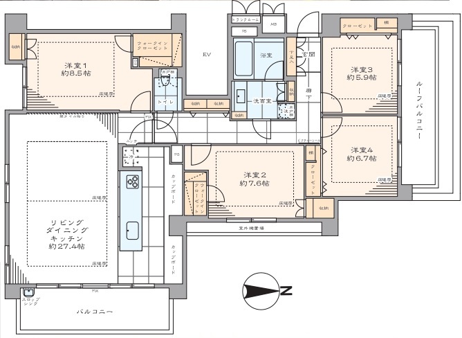
| 間取り | 4LDK |
| 交通 | 地下鉄烏丸線「烏丸御池」駅(徒歩4分) 地下鉄東西線「烏丸御池」駅(徒歩4分) 阪急京都線「烏丸」駅(徒歩14分) |
| 築年数 | 築16年~20年 | 建物面積 | 専有面積: 129.15㎡ バルコニー: 19.85㎡ |
|---|---|---|---|
| 階層 | 駐車場 | あり(要確認) | |
| 構造・工法 | 取引態様 | 仲介 | |
| 引渡 / 入居時期 | 即入居可 | 現況 | 空家 |
| 特徴 |
☆★☆フルリフォーム☆★☆ 〇システムキッチン新調 〇トイレ新調 〇洗面化粧台新調 〇ユニットバス新調 〇給湯器新調 〇フローリング貼替 〇全室天井壁紙クロス張替 〇ハウスクリーニング などなど 公営水道、公共下水、電気、都市ガス、エレベーター、宅配ボックス、TVモニタ付きインターホン、食器乾燥機、床暖房、追焚機能浴室、オートロック、温水洗浄便座、シャワー付き洗面台 ペット飼育 (管理規約による)🦍 |
||
| 管理形態 | 管理会社: ㈱エスホールディングス 全部委託 | ||
| 周辺環境 | ♪コープ御所南→徒歩約3分 ♪ファミリーマート烏丸押小路店→徒歩約3分 ♪京都東洞院押小路郵便局→徒歩約4分 ♪アインメディオ京都営業所→徒歩約7分 ♪京都市役所→徒歩約15分 |
||
| 自社物 | 状態 | 販売中 | |
| 用途地域 | 地目 | ||
| 敷地の権利 | |||
| 情報登録日 | 2026-01-17 | 情報更新日 | 2026-02-20 |









